GALLERY
PROPERTY DETAIL
Key Details
Sold Price $460,0004.2%
Property Type Single Family Home
Sub Type Detached Single
Listing Status Sold
Purchase Type For Sale
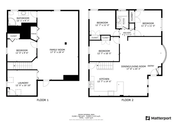
Square Footage 2, 037 sqft
Price per Sqft $225
MLS Listing ID 12186925
Sold Date 12/02/24
Bedrooms 4
Full Baths 2
Annual Tax Amount $7,301
Tax Year 2023
Lot Size 8,542 Sqft
Lot Dimensions 86X100
Property Sub-Type Detached Single
Location
State IL
County Cook
Community Curbs, Sidewalks, Street Lights, Street Paved, Other
Rooms
Basement Full
Building
Lot Description Fenced Yard
Story 1 Story
Foundation Concrete Perimeter
Sewer Public Sewer
Water Public
New Construction false
Interior
Heating Natural Gas, Forced Air
Cooling Central Air
Fireplace N
Appliance Range, Refrigerator, Washer, Dryer
Laundry Gas Dryer Hookup
Exterior
Exterior Feature Patio
Parking Features Attached
Garage Spaces 1.0
View Y/N true
Schools
High Schools Ridgewood Comm High School
School District 80, 80, 234
Others
HOA Fee Include None
Ownership Fee Simple
Special Listing Condition None
SIMILAR HOMES FOR SALE
Check for similar Single Family Homes at price around $460,000 in Norridge,IL

Active Under Contract
$599,900
5000 N Oconto Avenue, Harwood Heights, IL 60706
Listed by Mario DiLorenzo of Keller Williams ONEChicago3 Beds 3 Baths 1,839 SqFt
Pending
$475,000
4724 N Ozark Avenue, Norridge, IL 60706
Listed by Antonio Sarmiento of 606 Brokers LLC4 Beds 1.5 Baths 2,414 SqFt
Active Under Contract
$322,400
6704 W Forest Preserve Drive, Harwood Heights, IL 60706
Listed by Andre Bennett of Royal Crest Realty, Inc.3 Beds 3 Baths 1,326 SqFt
CONTACT









