GALLERY
PROPERTY DETAIL
Key Details
Sold Price $310,0003.9%
Property Type Single Family Home
Sub Type Detached Single
Listing Status Sold
Purchase Type For Sale
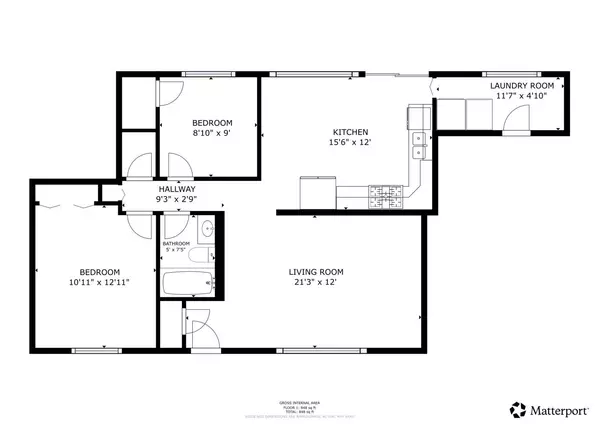
Square Footage 1, 000 sqft
Price per Sqft $310
Subdivision Greenbrook
MLS Listing ID 12445569
Sold Date 09/11/25
Style Ranch
Bedrooms 3
Full Baths 1
HOA Fees $36/mo
Year Built 1977
Annual Tax Amount $5,439
Tax Year 2024
Lot Size 8,668 Sqft
Lot Dimensions 66X122
Property Sub-Type Detached Single
Location
State IL
County Dupage
Community Clubhouse, Park, Pool, Tennis Court(S), Sidewalks, Street Lights, Street Paved
Rooms
Basement None
Building
Story 1 Story
Foundation Concrete Perimeter
Sewer Public Sewer
Water Public
Structure Type Brick,Frame,Masonite
New Construction false
Interior
Interior Features 1st Floor Bedroom, 1st Floor Full Bath
Heating Natural Gas, Forced Air
Cooling Central Air
Fireplace N
Appliance Range, Microwave, Dishwasher, Refrigerator, Washer, Dryer, Stainless Steel Appliance(s)
Laundry Main Level, In Unit
Exterior
Garage Spaces 1.0
View Y/N true
Roof Type Asphalt
Schools
Elementary Schools Greenbrook Elementary School
Middle Schools Spring Wood Middle School
High Schools Lake Park High School
School District 20, 20, 108
Others
HOA Fee Include Clubhouse,Pool
Ownership Fee Simple
Special Listing Condition None
SIMILAR HOMES FOR SALE
Check for similar Single Family Homes at price around $310,000 in Hanover Park,IL

Active Under Contract
$354,900
6658 Valley View Road, Hanover Park, IL 60133
Listed by Daniel Khoury of Suburban Life Realty, Ltd3 Beds 1.5 Baths 1,040 SqFt
Active Under Contract
$315,000
6971 Hanover Street, Hanover Park, IL 60133
Listed by James Rauscher of HomeSmart Connect LLC3 Beds 1 Bath 836 SqFt
Active Under Contract
$384,999
7315 Cumberland Drive, Hanover Park, IL 60133
Listed by Nirav Shah of eXp Realty3 Beds 2 Baths 2,100 SqFt
CONTACT









